Mehr anzeigen zum Thema Beschreibung
Beschreibung
Im Jahr 2003 auf einem ca. 1140 m² großen Grundstück errichtet, befindet sich dieses bezugsfertige Einfamilienhaus im Ortskern von Baunatal-Guntershausen, unweit der Fulda entfernt. In Holzständerbauweise von der Firma Fingerhaus hergestellt, bieten ca. 150 m² Wohnfläche verteilt auf 3 Etagen, viel Platz für unterschiedliche Nutzungen.
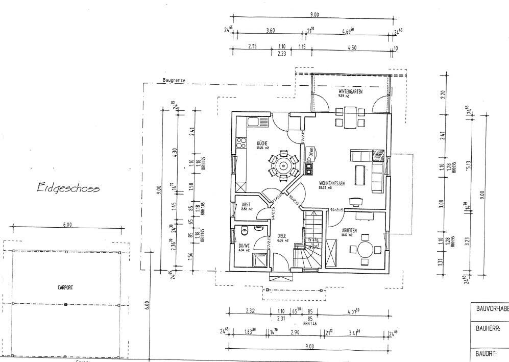
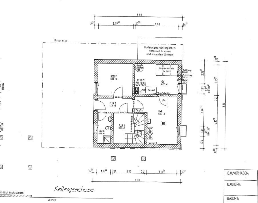
Im Erdgeschoss des Hauses befindet sich der geräumige Wohnbereich mit angeschlossenem Wintergarten, ein Büro oder Schlafzimmer, die Wohnküche, ein Badezimmer und eine kleine Garderobe. Im Dachgeschoss befinden sich 3 Schlafzimmer, ein Balkon und ein geräumiges Badezimmer. Im Untergeschoss befindet sich ein weiteres Gäste-Zimmer, ein Badezimmer, eine große Waschküche, der Heizungsraum und ein Lagerkeller.
Beheizt wird die Immobilie mit einer Ölzentralheizung mit Brennwerttechnik, die von einer solarthermischen Anlage bei der Warmwasserbereitung unterstützt wird. Alle Fenster und Türen sind aus Holz und mit Wärmedämmglas ausgestattet.
Ebenfalls auf dem Grundstück befindet sich ein 6x6m Doppelcarport. Das Grundstück ist pflegeleicht mit überwiegend Rasenfläche gestaltet.
Besichtigungen können in persönlicher Abstimmung vereinbart werden . Die Immobilie steht nach Absprache zur Verfügung.
Im Erdgeschoss des Hauses befindet sich der geräumige Wohnbereich mit angeschlossenem Wintergarten, ein Büro oder Schlafzimmer, die Wohnküche, ein Badezimmer und eine kleine Garderobe. Im Dachgeschoss befinden sich 3 Schlafzimmer, ein Balkon und ein geräumiges Badezimmer. Im Untergeschoss befindet sich ein weiteres Gäste-Zimmer, ein Badezimmer, eine große Waschküche, der Heizungsraum und ein Lagerkeller.
Beheizt wird die Immobilie mit einer Ölzentralheizung mit Brennwerttechnik, die von einer solarthermischen Anlage bei der Warmwasserbereitung unterstützt wird. Alle Fenster und Türen sind aus Holz und mit Wärmedämmglas ausgestattet.
Ebenfalls auf dem Grundstück befindet sich ein 6x6m Doppelcarport. Das Grundstück ist pflegeleicht mit überwiegend Rasenfläche gestaltet.
Besichtigungen können in persönlicher Abstimmung vereinbart werden . Die Immobilie steht nach Absprache zur Verfügung.
Mehr anzeigen zum Thema Sonstige Angaben
Sonstige Angaben
HAFTUNG:
Alle Angaben zum Objekt stammen vom Eigentümer. Bei Zeichnungen gelten immer die Ausführung und die Maße vor Ort. Wir übernehmen keine Haftung für Vollständigkeit und Richtigkeit der weitergegebenen Informationen und Unterlagen. Alle Immobilienangebote sind freibleibend. Irrtümer, Zwischenverkauf oder sonstige Zwischenverwertung vorbehalten.
HINWEIS ZUM WIDERRUFSRECHT:
Makler sind gemäß EU-Verbraucherrechterichtlinien dazu verpflichtet, Interessenten über ihr Widerrufsrecht bei Fernabsatzverträgen hinzuweisen. Ein Fernabsatzvertrag kommt bereits zustande, wenn Sie uns telefonisch oder per E-Mail bezüglich einer Immobilie kontaktieren.
Wir bitten daher um Ihr Verständnis, wenn Sie vor der Vereinbarung eines Besichtigungstermins bzw. vor Überlassung weiterer Informationen zur Immobilie von uns eine E-Mail mit detaillierten Informationen bezüglich Ihres Widerrufsrechts bekommen. Erst danach können wir in vollem Umfang für Sie tätig werden. Diese Maßnahme dient dem Schutz der Verbraucher und wir hoffen, dass wir Sie - trotz des kleinen Mehraufwandes - Ihrer neuen Immobilie einen Schritt näherbringen können.
PROVISIONSHINWEIS:
Sofern es durch unsere Nachweis- oder Vermittlungstätigkeit zum Abschluss eines notariellen Kaufvertrages kommt, ist vom Käufer eine Provision an uns, die Raiffeisen Immobilien GmbH, in Höhe von 3,57 % inkl. MwSt. vom Kaufpreis zu zahlen. Die Provision ist mit Abschluss des notariellen Kaufvertrages verdient und zur Zahlung fällig. Die Weitergabe an Dritte verpflichtet zur vollen Provisionszahlung.
Alle Angaben zum Objekt stammen vom Eigentümer. Bei Zeichnungen gelten immer die Ausführung und die Maße vor Ort. Wir übernehmen keine Haftung für Vollständigkeit und Richtigkeit der weitergegebenen Informationen und Unterlagen. Alle Immobilienangebote sind freibleibend. Irrtümer, Zwischenverkauf oder sonstige Zwischenverwertung vorbehalten.
HINWEIS ZUM WIDERRUFSRECHT:
Makler sind gemäß EU-Verbraucherrechterichtlinien dazu verpflichtet, Interessenten über ihr Widerrufsrecht bei Fernabsatzverträgen hinzuweisen. Ein Fernabsatzvertrag kommt bereits zustande, wenn Sie uns telefonisch oder per E-Mail bezüglich einer Immobilie kontaktieren.
Wir bitten daher um Ihr Verständnis, wenn Sie vor der Vereinbarung eines Besichtigungstermins bzw. vor Überlassung weiterer Informationen zur Immobilie von uns eine E-Mail mit detaillierten Informationen bezüglich Ihres Widerrufsrechts bekommen. Erst danach können wir in vollem Umfang für Sie tätig werden. Diese Maßnahme dient dem Schutz der Verbraucher und wir hoffen, dass wir Sie - trotz des kleinen Mehraufwandes - Ihrer neuen Immobilie einen Schritt näherbringen können.
PROVISIONSHINWEIS:
Sofern es durch unsere Nachweis- oder Vermittlungstätigkeit zum Abschluss eines notariellen Kaufvertrages kommt, ist vom Käufer eine Provision an uns, die Raiffeisen Immobilien GmbH, in Höhe von 3,57 % inkl. MwSt. vom Kaufpreis zu zahlen. Die Provision ist mit Abschluss des notariellen Kaufvertrages verdient und zur Zahlung fällig. Die Weitergabe an Dritte verpflichtet zur vollen Provisionszahlung.
Mehr anzeigen zum Thema Sonstige Angaben
Energieausweis
- Nutzungsart
- Wohnen
- Baujahr lt. Energieausweis
- 2003
- Endenergiebedarf
- 122,85 kWh/(m²a)
- Energieausweis
- Bedarfsausweis
- Energieeffizienzklasse
- D
- wesentlicher Energieträger
- Öl
Ihr Ansprechpartner
Herr Hannes Engelhard
Raiffeisen Immobilien GmbH
- Tel.:
- 056195379015
Europaplatz 1
34225 Baunatal / Altenbauna







































