Mehr anzeigen zum Thema Beschreibung
Beschreibung
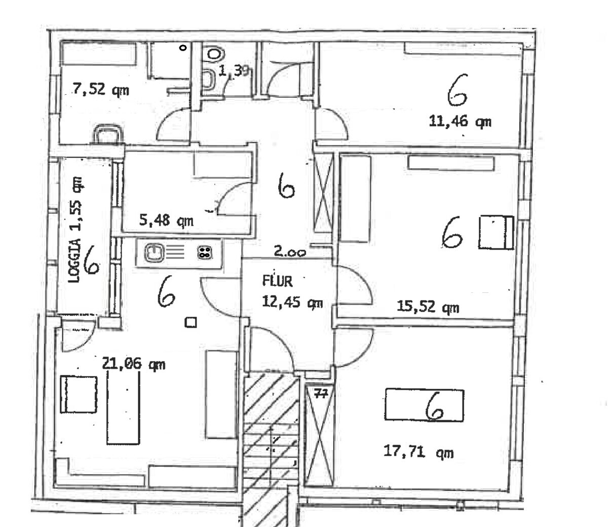
Die ca. 98 m² große 4,5-Zimmer-Eigentumswohnung liegt im 1. Obergeschoss eines gepflegten Mehrfamilienhauses aus dem Baujahr 1994 und um 1900. Herzstück der Wohnung ist die etwa 21 m² große Wohnküche mit direktem Zugang zur rund 6 m² großen Loggia, die einen schönen Blick auf den Dörnberg bietet. Die dreieinhalb weiteren Zimmer eignen sich flexibel als Wohn-, Schlaf-, Arbeits- oder Kinderzimmer und sind jeweils separat begehbar.
Das Tageslicht-Badezimmer wurde mit einer offenen Dusche sowie praktischen Einbauschränken ausgestattet. Ergänzend stehen ein separates WC und ein kleiner Abstellraum zur Verfügung.
Zur gemeinschaftlichen Nutzung gehören eine Waschküche im Haus sowie ein Kfz-Stellplatz im Hinterhof. Eine gewerbliche Nutzung der Einheit ist möglich. Die Wohnung ist aktuell ungekündigt vermietet und eignet sich daher auch ideal als Kapitalanlage. Die aktuelle Kaltmiete beträgt 650,00 € kalt.
Das Tageslicht-Badezimmer wurde mit einer offenen Dusche sowie praktischen Einbauschränken ausgestattet. Ergänzend stehen ein separates WC und ein kleiner Abstellraum zur Verfügung.
Zur gemeinschaftlichen Nutzung gehören eine Waschküche im Haus sowie ein Kfz-Stellplatz im Hinterhof. Eine gewerbliche Nutzung der Einheit ist möglich. Die Wohnung ist aktuell ungekündigt vermietet und eignet sich daher auch ideal als Kapitalanlage. Die aktuelle Kaltmiete beträgt 650,00 € kalt.
Mehr anzeigen zum Thema Lage
Lage
Die Wohnung befindet sich in zentraler Lage mitten in Zierenberg, einer charmanten nordhessischen Kleinstadt am Rand des Naturparks Habichtswald. Zierenberg bietet eine sehr gute Infrastruktur mit Einkaufsmöglichkeiten, Supermärkten, gastronomischen Angeboten, Ärzten, Apotheken, Schulen und Kindertagesstätten – alles bequem erreichbar und in Teilen nur wenige Gehminuten vom Objekt entfernt. Der historische Stadtkern mit seinen gepflegten Fachwerkhäusern verleiht dem Ort einen besonderen Charakter, während die Nähe zu ausgedehnten Wander- und Radwegen – insbesondere rund um den markanten Dörnberg – einen hohen Erholungswert schafft. Zusätzlich verfügt Zierenberg über ein beliebtes Freibad mit großzügigen Außenbereichen, das in den Sommermonaten für abwechslungsreiche Freizeitmöglichkeiten sorgt.
Der Bahnhof Zierenberg liegt nur etwa 300 Meter entfernt. Von dort erreicht man mit der Regionalbahn RB4 in rund 20 Minuten den ICE-Bahnhof Kassel-Wilhelmshöhe und profitiert so von einer ausgezeichneten Anbindung an den regionalen und überregionalen Verkehr. Auch für den Individualverkehr ist die Lage ideal: Die Autobahn A44 ist rund vier Kilometer entfernt und ermöglicht eine schnelle Anbindung in Richtung Kassel, Dortmund und das Umland.
Der Bahnhof Zierenberg liegt nur etwa 300 Meter entfernt. Von dort erreicht man mit der Regionalbahn RB4 in rund 20 Minuten den ICE-Bahnhof Kassel-Wilhelmshöhe und profitiert so von einer ausgezeichneten Anbindung an den regionalen und überregionalen Verkehr. Auch für den Individualverkehr ist die Lage ideal: Die Autobahn A44 ist rund vier Kilometer entfernt und ermöglicht eine schnelle Anbindung in Richtung Kassel, Dortmund und das Umland.
Mehr anzeigen zum Thema Sonstige Angaben
Sonstige Angaben
HAFTUNG:
Alle Angaben zum Objekt stammen vom Eigentümer. Bei Zeichnungen gelten immer die Ausführung und die Maße vor Ort. Wir übernehmen keine Haftung für Vollständigkeit und Richtigkeit der weitergegebenen Informationen und Unterlagen. Alle Immobilienangebote sind freibleibend. Irrtümer, Zwischenverkauf oder sonstige Zwischenverwertung vorbehalten.
HINWEIS ZUM WIDERRUFSRECHT:
Makler sind gemäß EU-Verbraucherrechterichtlinien dazu verpflichtet, Interessenten über ihr Widerrufsrecht bei Fernabsatzverträgen hinzuweisen. Ein Fernabsatzvertrag kommt bereits zustande, wenn Sie uns telefonisch oder per E-Mail bezüglich einer Immobilie kontaktieren.
Wir bitten daher um Ihr Verständnis, wenn Sie vor der Vereinbarung eines Besichtigungstermins bzw. vor Überlassung weiterer Informationen zur Immobilie von uns eine E-Mail mit detaillierten Informationen bezüglich Ihres Widerrufsrechts bekommen. Erst danach können wir in vollem Umfang für Sie tätig werden. Diese Maßnahme dient dem Schutz der Verbraucher und wir hoffen, dass wir Sie - trotz des kleinen Mehraufwandes - Ihrer neuen Immobilie einen Schritt näherbringen können.
PROVISIONSHINWEIS:
Sofern es durch unsere Nachweis- oder Vermittlungstätigkeit zum Abschluss eines notariellen Kaufvertrages kommt, ist vom Käufer eine Provision an uns, die Raiffeisen Dienstleistungs- und Vermittlungs- GmbH, in Höhe von 3,57 % inkl. MwSt. vom Kaufpreis zu zahlen. Die Provision ist mit Abschluss des notariellen Kaufvertrages verdient und zur Zahlung fällig. Die Weitergabe an Dritte verpflichtet zur vollen Provisionszahlung.
Alle Angaben zum Objekt stammen vom Eigentümer. Bei Zeichnungen gelten immer die Ausführung und die Maße vor Ort. Wir übernehmen keine Haftung für Vollständigkeit und Richtigkeit der weitergegebenen Informationen und Unterlagen. Alle Immobilienangebote sind freibleibend. Irrtümer, Zwischenverkauf oder sonstige Zwischenverwertung vorbehalten.
HINWEIS ZUM WIDERRUFSRECHT:
Makler sind gemäß EU-Verbraucherrechterichtlinien dazu verpflichtet, Interessenten über ihr Widerrufsrecht bei Fernabsatzverträgen hinzuweisen. Ein Fernabsatzvertrag kommt bereits zustande, wenn Sie uns telefonisch oder per E-Mail bezüglich einer Immobilie kontaktieren.
Wir bitten daher um Ihr Verständnis, wenn Sie vor der Vereinbarung eines Besichtigungstermins bzw. vor Überlassung weiterer Informationen zur Immobilie von uns eine E-Mail mit detaillierten Informationen bezüglich Ihres Widerrufsrechts bekommen. Erst danach können wir in vollem Umfang für Sie tätig werden. Diese Maßnahme dient dem Schutz der Verbraucher und wir hoffen, dass wir Sie - trotz des kleinen Mehraufwandes - Ihrer neuen Immobilie einen Schritt näherbringen können.
PROVISIONSHINWEIS:
Sofern es durch unsere Nachweis- oder Vermittlungstätigkeit zum Abschluss eines notariellen Kaufvertrages kommt, ist vom Käufer eine Provision an uns, die Raiffeisen Dienstleistungs- und Vermittlungs- GmbH, in Höhe von 3,57 % inkl. MwSt. vom Kaufpreis zu zahlen. Die Provision ist mit Abschluss des notariellen Kaufvertrages verdient und zur Zahlung fällig. Die Weitergabe an Dritte verpflichtet zur vollen Provisionszahlung.
Mehr anzeigen zum Thema Sonstige Angaben
Energieausweis
A+
< 30
A
30 - 50
B
50 - 75
C
75 - 100
D
100 - 130
E
130 - 160
F
160 - 200
G
200 - 250
H
> 250
- Nutzungsart
- Wohnen
- Endenergiebedarf
- 191,4 kWh/(m²a)
- Energieausweis
- Bedarfsausweis
- Energieausweis gültig bis
- 27.09.2028
- Energieeffizienzklasse
- F
- wesentlicher Energieträger
- Gas
Ihr Ansprechpartner
Herr Kai Gustke
Raiffeisen Immobilien GmbH
- Tel.:
- 056195379015
Europaplatz 1
34225 Baunatal / Altenbauna


















